P C Stamstraat 70
7442 ZD Nijverdal- Type woning
- Vrijstaande woning
- Bouwjaar
- 1910
- Perceel
- 1.085 m2
- Woonoppervlakte
- 91 m2
- Slaapkamers
- 3
Ben je op zoek naar een kluswoning die je helemaal naar je eigen wens kan maken, kom dan vooral deze woning bezichtigen. Goede plek, diepe tuin (ruim 60 m1) met garage en wat kleinere bijgebouwen. Dus volop mogelijkheden tot aanbouw/verbouw. Voor wie is deze woning geschikt ? Voor diegene die de handen uit de mouwen […]
Ben je op zoek naar een kluswoning die je helemaal naar je eigen wens kan maken, kom dan vooral deze woning bezichtigen. Goede plek, diepe tuin (ruim 60 m1) met garage en wat kleinere bijgebouwen. Dus volop mogelijkheden tot aanbouw/verbouw. Voor wie is deze woning geschikt ? Voor diegene die de handen uit de mouwen wil steken; een Bob de Bouwer een Willy Wortel, goede vakman of nog beter een combinatie van deze voor het mooiste resultaat.
Ligging nabij de Regge met vele wandel- en fietspaden.
Interesse gewekt laat het ons dan weten dan plannen we een bezichtiging in.
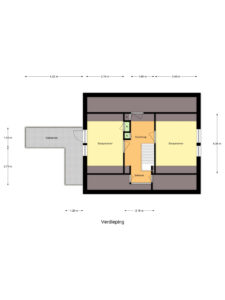
Indeling
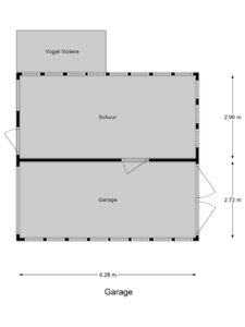
Begane grond: zij-entree, hal met trapopgang, slaapkamer met meterkast, dichte keuken, kelder, woonkamer met schouw, eethoek, bijkeuken/achteringang, toilet met fontein, doucheruimte met wastafel.
Eerste verdieping: overloop met dakkapel en vaste kasten, twee slaapkamers, waarvan 1 met toegang tot terras.
Bijzonderheden:
* kluswoning;
* bouwjaar 1910;
* perceeloppervlakte 1085 m2;
* woonoppervlakte 91 m2;
* gedeeltelijk v.v. dubbele beglazing;
* energielabel G;
* aan de voorzijde is een strook gemeentegrond in gebruik van ca 53 m2;
- Status
- Onder bod
- Vraagprijs
- € 389.000,- k.k.
- Aanvaarding
- In overleg
- Woonoppervlakte
- 91 m2
- Inhoud
- 348 m3
- Soort object
- Woonhuis
- Type woning
- Vrijstaande woning
- Bouwvorm
- Bestaande bouw
- Soort
- Eengezinswoning
- Bouwjaar
- 1910
- Ligging
- Vrij uitzicht, Beschutte ligging
- Woonoppervlakte
- 91 m2
- Perceel oppervlakte
- 1.085 m2
- Oppervlakte externe bergruimte
- 53 m2
- Inhoud
- 348 m3
- Aantal kamers
- 4
- Aantal slaapkamers
- 3
- Isolatievormen
- Gedeeltelijk dubbelglas
- Verwarming
- CV ketel
- Warmwater
- CV ketel
- CV ketel type
- Hr Nefit
- Tuintypen
- Achtertuin, Voortuin, Zijtuin
- Hoofdtuin
- Achtertuin
- Hoofdtuin oppervlakte
- 900 m2
- Positie
- West
- Achterom
- Ja
- Kwaliteit
- Normaal
- Soort
- Vrijstaand steen
- Isolatievormen
- Geen isolatie
- Oppervlakte externe bergruimte
- 53 m2
- Soorten
- Vrijstaand steen, Parkeerplaats
- Voorzieningen
- Elektra
- Capaciteit
- 1
- Oppervlakte
- 17 m2
- Isolatievormen
- Geen isolatie
- Totaal aantal garages
- 1
- Dak type
- Zadeldak
- Voorzieningen
- Buitenzonwering, Natuurlijke ventilatie
- Permanente bewoning
- Ja
- Waardering
- Slecht tot matig
- Waardering
- Slecht tot matig
- Bijzonderheden
- Kluswoning, Sloopwoning
- Huidig gebruik
- Woonruimte
- Huidige bestemming
- Woonruimte








